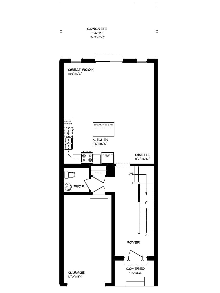
The floor plans and square footage are generally accurate but are approximate and subject to change. E. & O. E
- Air conditioning
- Whole home air exchange system (HRV)
- Asphalt driveway
- Family room in basement
- Island in kitchen
- Quartz countertops
- Stainless steel dishwasher
- Stainless steel range hood
- Stainless fridge & stove
- Ceramic tile backsplash in kitchen
- Luxury vinyl plank flooring
- Powerbolt on front door
- Concrete patio in rear yard
- Privacy screen
- Painted basement floor (unfinished area only)
